Support

Lorem ipsum dolor sit amet:

24h / 365days

We offer support for our customers

Mon - Fri 8:00am - 5:00pm (GMT +1)

Get in touch

Cybersteel Inc.
376-293 City Road, Suite 600
San Francisco, CA 94102

Have any questions?
+44 1234 567 890

Drop us a line
info@yourdomain.com

About us

Lorem ipsum dolor sit amet, consectetuer adipiscing elit.

Aenean commodo ligula eget dolor. Aenean massa. Cum sociis natoque penatibus et magnis dis parturient montes, nascetur ridiculus mus. Donec quam felis, ultricies nec.

DE
Have any Questions? +01 123 444 555

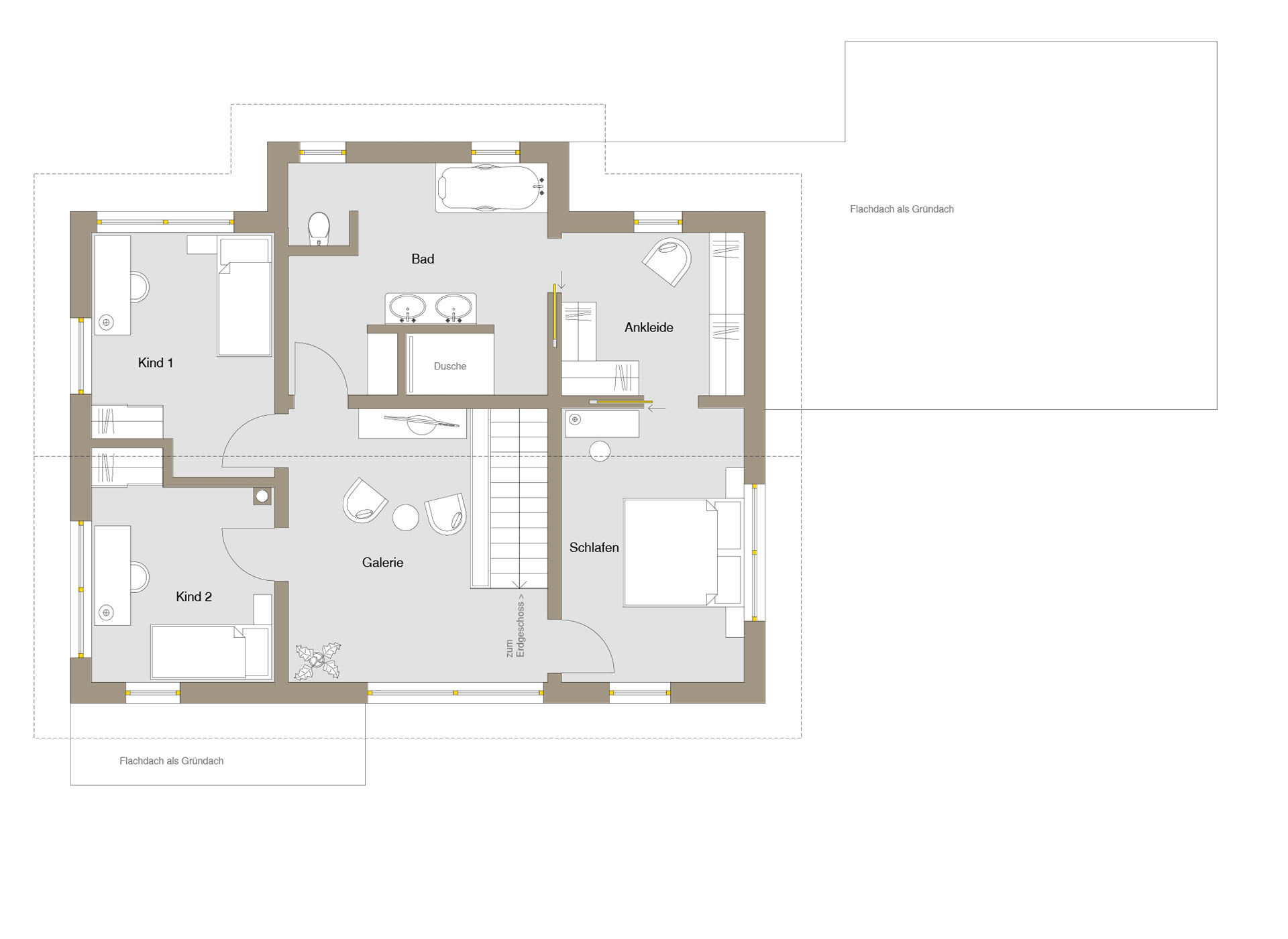
Ebenerdiges Wohnen am Hang: Mit viel Platz um das Haus und einer gemütlichen Terrasse wurde dieses Einfamilienhaus mit Garage perfekt in die Schräge Integriert. Das zweigeschossige KFW Effizienzhaus mit sichtbarem Dachgebälk verfügt über eine zentrale Lüftungsanlage und wird mit einer Wärmepumpe beheizt. Das Haus verbindet optimalen Wohnkomfort mit höchster Energieeffizienz durch eine Ökologische Dämmung mit Zellulose und Holzfaserdämmstoffen, sowie Holz-Alu Fenster mit Super Thermo-3 Wärmeschutzverglasung.

Fakten

Außenmaße 10,45 x 12,12 m
Nettogrundfläche EG 112,46 m2
Nettogrundfläche DG 106,32 m2
Nettogrundfläche Gesamt 219,43 m2
Dachneigung/Kniestock 24° /0 cm

Erdgeschoss

Obergeschoss

Zurück

Details
Copyright 2026 Kuttruff Holzbau.
Es werden nur notwendige Cookies für die saubere Darstellung der Website geladen. Details finden Sie in unserer Datenschutzerklärung und unserem Impressum.